El sitio arqueológico de Valbuena
El sitio arqueológico de Valbuena fue excavado entre los años 2000-2003 por encargo de la administración municipal, habiéndose iniciado poco después un proyecto de rehabilitación arquitectónica posteriormente interrumpido. La particular secuencia estratigráfica de sus restos ha quedado articulada alrededor de los siguientes hitos temporales:
- Nivel 0. Altozano de grava de calicanto perteneciente a la terraza fluvial que se yergue sobre la red de regatos y corrientes que conforma la desembocadura del río Iregua en el Ebro.
- Nivel I. Campo de silos de cereal habilitado en las primeras fases de la Edad Media. Hasta la fecha, únicamente ha podido ser documentada la fracción del campo coincidente con el área cumbrera del cerro primigenio de Valcuerna.
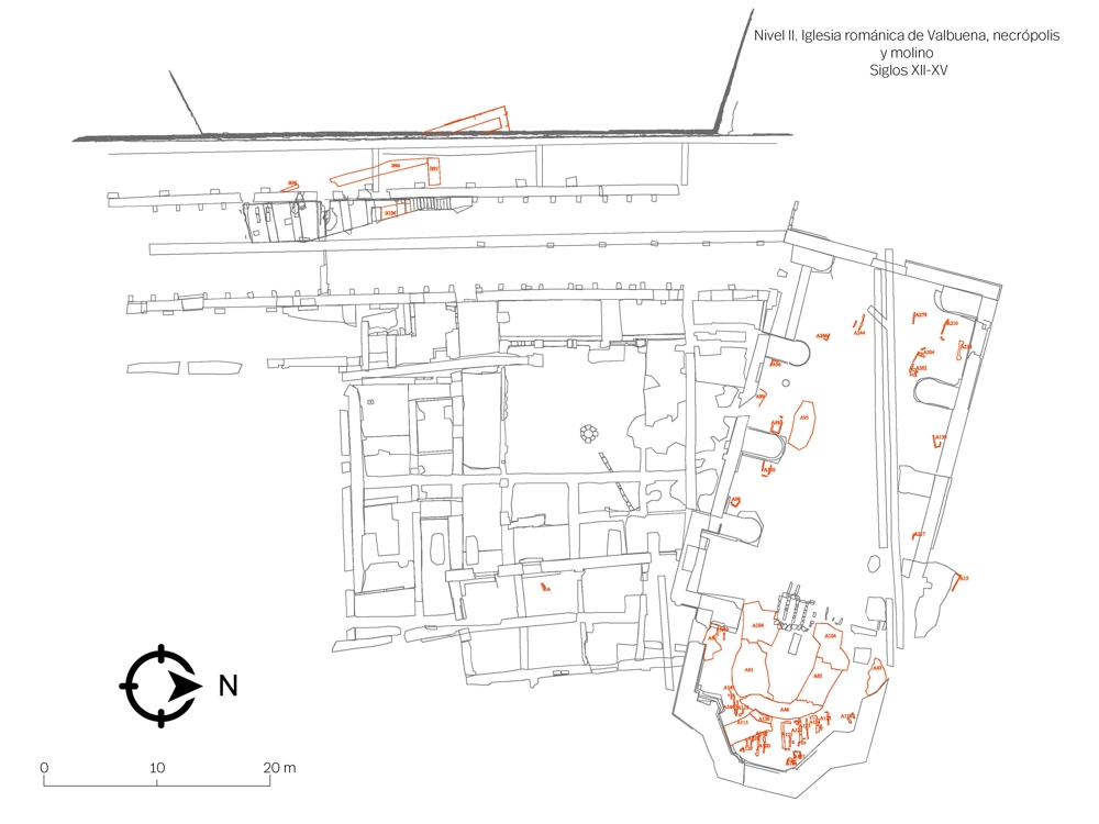
- Nivel II. La iglesia románica de Santa María de Valcuerna, necrópolis exterior y molino. Siglos XII-XV. Vinculación con la infraestructura del Camino de Santiago y con la promoción institucional movilizada por el fuero de francos, concedido a Logroño en el año 1095.
- Nivel III. Construcción del convento dominico a comienzos del siglo XVI. Instalaciones conventuales canónicas de una orden mendicante: iglesia, necrópolis interior, portería, claustro, sala capitular, refectorio, torre, cilla y bodega.
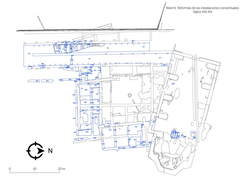
- Nivel IV. Reformas de las instalaciones conventuales originales. El nombre de Valcuerna se convierte en Valbuena. Siglos XVII-XIX.
- Nivel V. Construcción del recinto fortificado de la ciudad en el contexto de la Primera Guerra Carlista (1833-1840). El recinto del antiguo convento se rodea de una batería artillera.
- Nivel VI. Progresiva adaptación militar de las antiguas dotaciones conventuales. Fases más avanzadas del siglo XIX.
- Nivel VII. Demolición de las dotaciones conventuales reformadas y construcción de los edificios de la Intendencia Militar. Año 1893.





